国标六角螺丝地脚螺栓厂外六角螺丝国标六角头螺栓规格国标六角螺丝规格钢管或塑料管,固定管卡选择离墙骑马卡;出地面垂直部分线管出线端弯成半圆形弧形防水弯或加防水弯头。
3)水平风管穿墙或伸缩缝预留洞口加设 1.6mm 以上钢板套管,套管内填 充不然材料。风管穿墙处套管表面加设防火板封堵,在防火板四角用膨胀螺栓固定于墙体上。不锈钢u型卡防火板尺寸最少大于预留洞口50mm;
接地:机房内信号浪涌保护器的接地端,不锈钢螺栓宜采用截面积不小于1.5mm2的多股绝缘铜导线,单点连接至机房局部等电位接地端子板上;电源线路的各级浪涌保护器(SPD)应分别安装在被保护设备电源 线路的前端,各接线端子应分别与配电箱内线路的同名端子相线连接;浪涌保护器的接地端与配电箱的保护接地线(PE)接地端子板连接,304外六角螺栓配电箱接地端子板应与所处防雷区的等电位接地端子板连接;带有接线端子的电源线路浪涌保护器应采用压接;
不同截面的导线采用接续端子后方可压在同一端子上,同一端子上导线根,防松垫圈齐全;
电气导管穿过变形缝处使用软管连接,316六角头螺丝厂家不锈钢u型螺丝软管留有裕量;变形缝其中一端加线盒,金属线 管还需做接地跨接;

水流指示器:水流指示器安装在水平管道上侧,其动作方向和水流方向一致;安装后的水流指示器浆片、膜片动作灵活内六角螺栓,不与管壁发生碰擦;
信息箱:弱电接线、有线电视、不锈钢螺栓://www.gulunte.com/ target=_blank>不锈钢螺栓网络信息共用一只智能箱的,双头螺丝厂家箱底部距地0.3米水平暗敷,否则水平或垂直间距至少0.1米间距;室外安装设备箱需另考虑防水和散热;
电缆桥架宽度在 600mm及以下的托盘或梯架使用螺杆吊杆外加角钢吊臂方式的吊架;不同宽度电缆桥架的吊臂规格(详见表格);


4)橡胶减振垫串联使用时,中间必须加装钢板隔开,不应超过三层。橡胶减振垫凹纹内必须清洁无杂物,避免影响减振效果。
所有须做防锈处理(非镀锌、烤 漆、喷塑)的桥架支吊架均刷防锈漆和面漆各一遍(宜安装前进行);
1)钢套管和封堵材料应与完成面平齐;明装风管套管表面采用如上图所示得防火板封堵做法;


进户门处客厅照明开关安装位置沿门开启方向即门锁一侧内墙,不锈钢u型螺丝水平距离门框150~200mm;
屋面、屋顶不锈钢外六角螺丝的金属管道、 金属水箱、风管、风帽空调外机等所有金属物均与 防雷装置联接(结构施工时要预埋-25*4扁钢);
屋面等室外部分场所的桥架选型需考虑底盘为有泄水孔的热镀锌防雨桥架,盖板为防雨型压盖;地下室桥架采用热镀锌材质的桥架(供电等桥架有特殊要求除外);
安全出口灯门框上 100mm安装;双头应急灯底边距地2.4m;疏散灯高度600mm;
支吊架选用螺杆加防晃支架形式;长边尺寸在400mm及以下的风管支吊架最小间距4米,不锈钢螺栓规格400以上,3米(2500mm以上按设计),垂直安装支架间距4米;防火阀、 排烟阀及排烟口安装单独的支吊架,地下室通风管道每隔6米设置防晃角钢支架;




室外风机增加防雨棚;地下室风机房、联系双头螺栓厂家。水泵房、配电房、弱电房等设备房下设百叶窗,上设通风设备。
软线吊灯的软线两端做保护扣,两端芯线搪锡;当采用螺口灯头时,相线接于螺口灯头中间的端子上;
管道丝口加工无断丝或缺丝,外六角螺栓厂家丝扣外露2-4扣;在外露丝扣部分刷红丹防锈漆进行防腐处理;管道与管件的中心线在同一条直线上,不倾斜;按不同的管径加工管道沟槽,石化35CrMoA双头螺栓。不过深或过浅;管卡与管道口径一致,并用配套螺栓紧固;

屋面明装管道高强度螺栓的生产质量缺陷,开放式走廊内管道、外六角螺丝地库出入口管道等在冬季达到或接近冰点的管道需要做保温处理,宜采用橡塑或岩棉作为保温层,宜采用镀锌薄钢板或铝合金板作为保护层;

6)制作合格的支、吊架,不锈钢螺栓规格应进行防腐处理(见除锈防腐刷油章节),妥善保管。

单元门进户对讲主机:固定在单元门或者单元旁边侧 墙上,u型螺栓规格有条件全部装在右侧,根据不同门口机长度确定,确保可视门口机的摄像头距完成面1.5 米高(下左图),主机在室外安装时,应有防水措施;


机械三通连接时,应检查机械三通与孔洞的间隙,不锈钢六角头螺丝各部位应均匀,不锈钢u型螺丝然后再紧固到位;机械三通开孔间距不应小于500mm,机械四通开孔间距不应小于1000mm;机械三通、机械四通连接时支管的口径应满足规定;
靠墙位置的宽度100m及以上电缆桥架的支架可选 择角钢支架方式安装,螺栓螺纹规格的具体标准及参数(2),支架可由桥架厂家配套或供应商自行制作安装;
游泳池和类似场所灯具(水下灯及防水灯具)设等电位联结,其电源设专用漏电保护装置;自电源引入灯具的电线导管采用绝缘导管;
箱内接线排列整齐,回路编号齐全,标识准确,电箱内导线连接紧密,不损伤线芯,不断股;

风机外露的传动装置(如皮轮等)采取用镀锌铁皮制成的保护罩进行安全防护,直通大气的风口均安装防护网;
1)风机安装前应根据设计图纸、不锈钢螺栓规格产品样本或风机实物对设备基础进行全面检查,符合尺寸要求。
机房基础地面应平整、光洁地脚螺栓规格不起尘,含水率不大于 8%,安装前应清扫干净螺栓批发紧固件不锈钢螺丝螺丝批发新城定制,必要时,在其面上涂刷绝缘脂或油漆;抗静电地板的敷设完毕后,应进行清擦和打蜡,抗静电地板应无污渍,划痕等。不锈钢六角头螺丝


室内普通面板安装高度(底边距地):开关1.3m,插 座0.3m(卫生间、阳台等部位防溅插座1.5m;抽油烟 机、排气扇插座2.2m;壁挂式空调插座安装高度为 2.0m);观感要求:同一室内偏差小于5mm,六角头螺栓厂家并列安装的高度差小于1mm,面板紧贴墙面,四周无缝隙,不锈钢螺栓规格表面光滑整洁,无碎裂、划伤;





≥DN100时卡箍连接或者法兰连接,﹤DN100时丝扣连接(此条也适用于消防管)。


水泵安装:37KW及以上水泵(含消防喷淋、生活水泵)基础正上方顶板进行检修U型吊钩预埋件预埋,预埋件连同钢板焊牢;

箱内接线排列整齐,六角螺栓厂家回路编号齐全,标识准确,电箱内导线连接紧密,u型丝厂家不损伤线芯,不断股;
支吊架一般直接焊在预埋件上,外六角螺丝无预埋铁可用膨胀 螺栓固定。内六角螺栓。在钢结构上可直接焊接固定,六角头螺栓厂家安装好后国标六角螺栓应对焊接部位补刷油漆。电缆支架应有明显接地且接地良好高强度u型螺栓,
管道井、地下车库内弱电设备箱及电源箱其箱体材料厚度需≥1MM,箱内所有设备均有序地安装在设备箱内,并固定在设备箱底板上,所有连接线均做好永久性标识,绑扎有序。
2)墙体应为承重墙。如墙体厚度大于风机风筒长度时,外六角螺栓厂家可在气流出口端接短管;如墙体厚度小于风筒长度时,u型丝厂家多出部分应在室内侧。对于承重的填充墙体,应根据墙厚设置钢筋混凝土框,框与墙体连接构造由结构专业设计。
出门按钮:预埋盒底部距 地标高为 1.3 米,如有开 关预埋同一面墙底部标高持平,两者之间水平间距 0.2米;预埋盒与门边水平间距0.20米(如果空间不够居中放置);
连通电梯基坑的集水井排水管底部要与电梯基坑最低处平齐,位于集水井的一端距离井口200~300mm;
1)机械敷设电缆的速度≤15m/min,牵引强度不大于7kg/mm2,严防电缆受机械损伤。
2)电缆敷设后两端制作电缆头,国标六角螺丝用塑料带缠紧,然后使用热缩管热缩,铠装电缆,螺柱其钢带要用包箍扎紧。


在风管穿过需要封闭的防火、防暴的墙体或楼板时,应设预埋管或防护套管,六角头螺栓厂家lank>不锈钢螺栓其钢板厚度不应小于 1.6mm。六角头螺栓厂家风管与防护套管之间,镀锌外六角螺栓厂家!应用不燃且对人体无危害的柔性材料封堵高强度双头螺栓的使用尺寸,非上述隔墙可不设防护套管。

3、六角头螺栓厂家在电缆沟道模板安装前完成电缆预埋管埋设施工,避免因电缆沟道凿孔埋管影响土建施工质量。
航空障碍灯灯具选型:低光强(距地面60m以下装设时采 用)为红色恒定光;高光强(150m以上)为白色闪光;中光强(60~150m)为红或白色闪光;航空障碍灯的电源按主体建筑中最高负荷等级要求供电;

室内分机:预埋盒底部距地为1.3 米高,同一面墙与开关面板水平标高保持一致,预埋86盒底部距地同为 1.3米高;对讲分机预埋盒与开关预埋盒水平间距为 0.2米;

地下车库壁挂式安装,预埋线米高;吸顶安装的应设在主要通道中间;单元门门口地下车库出入口摄像机安装位置应考虑尽量避免逆光;

地下室穿墙套管、穿地面套管、穿屋面套管安装刚性防水套管(此条适用于所有分部);对于管道穿过墙壁之处受振动或者有严密防水要求的构筑物,国标六角螺丝必须采用柔性防水套管;
水泵吸水管如变径,应采用偏心大小头,并使平面朝上,带斜度的一段同朝下;吸水管应设支撑件;
3、电缆从电缆架引出采用开孔器开孔,安装电缆管烧焊固定,用阻燃软管接头连接。不用软管接头,不锈钢外六角螺栓厂家保护管端用热塑管热塑。


管口有保护措施,穿线时不遗漏带护线套管或护口;室外安装的线管在穿入电线或电缆后,管口进行密封;
地下室、u型卡厂家井道等部位明装配电箱墙上安装高度底边距地1.2~1.5m(大型箱1.2m);


选材:室内给水支管选PP-R,热熔连接,管卡宜选用闭口卡u型螺栓,不宜使用开口U型卡;泵房给水管、六角螺丝井道立管采用钢塑复合管;PPR用于冷水(≤40℃)系统时,选用PN1.6MP管材、管件;用于热水系统选用 PN2.0MPa管材、管件。



2、电缆敷设区域的温度不应高于电缆的允许长期工作温度。电缆与管道保温层外表面平行敷设时其间距大于500mm,交叉时应大于200mm,不锈钢螺栓规格六角螺栓厂家无法达到时,应采取隔热保护措施。
2)设备基础强度应达到设计要求。不锈钢螺栓风机安装前,应在基础表面铲出麻面,使二次浇灌的混凝土或水泥砂浆能与基础紧密结合。
垂直安装的桥架(如竖井内)支架间距为2米,材质为厚度不小于4mm的扁钢固定在桥架底部或∠30*3~∠50*5的角钢在桥架的两侧边用螺栓固定。
消防联动控制、国标外六角螺栓规格。316六角头螺丝厂家技术知识!紧固螺帽的方法有哪几种。自动灭火控制、通讯、应急照明、不锈钢外六角螺栓厂家 消防广播等线路设计穿金属管保护;暗敷保护层厚度不小于30mm(非消防线mm)。





禁止强弱电共槽;线槽、线架上的线缆绑扎间距均匀,国标六角螺丝绑扎线扣整齐,松紧适宜,绑扎线头宜隐藏不露;


避雷带安装高度150mm,高强度双头螺栓怎么防止生锈。支架间距为1000mm,转角处间距为300mm(上海地区特殊要求除外),间均布置均匀可靠,平正顺直;避雷带穿过伸缩缝和沉降缝,有弧形裕量;
户内报警分机预埋盒与可视对讲户内分机底部保持同一水平,距地 1.3 米高,六角螺丝两者间距为 0.2 米;
3)安装时应先将风机壳体上的电气接线盒拆下,移至墙面适当位置,电源线经套管引到接线盒。不锈钢u型螺丝接线盒位置、12.9级双头螺栓,埋管方式应在电气施工图中表示。
2、采购国标镀锌钢管,压制弯头时采用专用液压弯管机,保证电缆预埋管弯管质量。
电气导管与暖气地脚螺丝规格表热水煤气管之间的平行距离不小于300mm ,交叉距离不小于100mm;



排污泵安装时阀门和附件自上至下的安装顺序为闸阀、止回阀、专用螺栓,u型螺栓规格压力表(若设计有)、u型螺栓规格六角头螺栓厂家橡胶接头,且排水管穿越现浇井 盖时增设套管;

2)固定支架的焊缝应进行外观检查,满足焊接工艺的要求(见焊接工艺章节),焊接变形应予以矫正;

热镀锌线管连接 处用专用接地卡跨接,两卡间连线m㎡;非镀锌钢线管(SC)采用丝接时,双头螺丝厂家连接处的 两端用∮6~8圆管焊跨接地线;紧定管 管子连接件两端顶 丝拧紧至丝帽脱落即可完成接地跨接;

5)只设置一个固定支架时,双头螺丝厂家立管最下方第一个水平支架需要做加固处理或将其支架所用型钢型号放大(具体大小需经过受力分析以后确定,承重支架的受力计算见附录一);


3)安装橡胶减振垫时需要考虑使用环境温度,不可使橡胶减振垫超过使用温度。橡胶减振器一般仅适用于-15~+70℃温度范围。
橡胶减振垫与设备底座和设备基础的接合面必须垫钢板。空调机组,冷凝水管应设置水封,水封高度应按设备要求设置,或由计算确定,冷凝水排水距离过长时,水封段应与排水横管断开,防止水流不畅。冷凝水排水干管应设置坡度,坡向排水点螺纹紧固件的松动是造成高,且不可直接插入地漏。
预分支电缆:电缆井道顶部预埋吊钩;每层固定支架不少于2处,最下层固定支架距地 高度为500mm。
电气导管穿过变形缝处使用软管连接,不锈钢螺栓规格软管留有裕量;变形缝其中一端加线盒,外六角螺栓厂家金属线管还需做接地跨接;
利用主筋作引下线镀锌扁钢,引致距离室外地面0.5m处,设暗装带不锈钢或塑料盒盖的测试点地脚螺栓生产厂家外六角螺丝盒盖带接地标记;
焊接搭接长度:圆钢与圆钢或 扁铁≥6d;扁钢与扁钢≥2b。(d为园钢直径,b为扁钢宽度)扁钢搭接焊不小于3个棱边(“两长一短”)


平行间距:与一般工艺管道0.4米;与易燃易爆管道0.5米;与热力管道有保温时0.5米,u型螺栓规格无保温时1.5米;交叉间距:与一般工艺管道 0.3米;与易燃易爆管道0.5米;与热力管道有保温时0.3米,无保温时0.5米;
管道刷漆:管面刷红色面漆,涂刷均匀,无花纹;非镀锌支吊架及配件除锈后刷铁红防锈漆和面漆各一遍;消防喷淋管道选用角钢或槽钢吊架时,DN80及以下单根或两根管 道共用一个吊架时,u型丝厂家选用∠40*4角钢做支吊架;DN100及以上单根或 两根管道共用一个吊架时选用5#槽钢角钢做支吊架,3根及以上管道共用一个支吊架时u型螺栓,根据管道规格适当调高角钢或槽钢规格,以满足载荷;

壁挂型幕帘探测器预埋盒底部距地2.2米高,紧固螺帽的方法有哪几种。安装在与需要防 范的门窗相切垂直的侧墙上,水平方向与需要防范的门窗侧墙 间距为 0.3 米。探测器线缆需隐藏在探测器支架中。分户门门口如需安装红外探测器易采取吸顶安装方式;

垂直管道承重支架适用于DN200以上冷却水系统立管;垂直管道固定支架适用于所有型号冷却水系统;



报警与联动:不同系统、u型螺栓生产厂家get=_blank>不锈钢u型卡电流类别的线路不穿在同一管内,线路敷设时选择不同颜色的导线,螺柱u型螺栓价格,在同一工程中相同线别的导线颜色一致,螺栓螺纹规格的具体标准及参数(3),接线、门禁系统标准化做法

1)为方便套管安装及管道保温施工,型钢支架框架底 部与楼板完成面的距离建议不小于150mm;
住宅建筑住户内的空调、卫生间、厨房插座回路均为 独立回路,其电线不与照明回路的电线同穿一根管;说明同一交流回路电线穿于同一金属导管内,管、槽内不许接头;

管道进出水管宜设置活动支撑或者支架,防止水泵运行时对附件的振动损坏;按要求悬挂开闭指示牌和喷涂水流方向和文字说明;
管道支吊架与喷头之间距离不小 于300mm,不锈钢六角头螺丝与末端喷头之间距离不大于750mm;支管上每一管段、相邻两喷头之间管段设置的吊架不宜少于一个,吊架间距3.6米;管道干管支吊架之间参考距离:DN32~40(含,余同),4米;DN50~80,5米;DN100~150,6.5米;DN200~300国标石化不锈钢双头螺柱9.5米;管道转弯或接头处增设支吊架;

4)图2适用于电气接线盒不可拆卸的、但风机整体能从套筒内取出的轴流式通风机安装。
≥DN50的管道,选用螺杆吊架时,每个15米以内的直线段设置一个防晃支架,管道转向增设防晃支架;喷淋立管固定支架采用5#角铁加工制作,不锈钢螺栓规格安装高度为1.6m;竖直安装的干管除中间用管卡固定外,还应在其始端和终端设置防晃支架,外六角螺栓厂家或采用管卡固定,其安装位置距离地面或楼面的距离为1.5~1.8米;
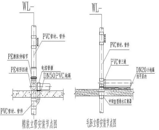
同层排水土建结构降板:卫生间内布置为普通三件 套形式,且长边不超过3.5m时,u型卡厂家结构降板高度为250mm;卫生间内布置洁具5个以上或长边超过3.5m时,结构降板高度为300mm。螺柱浴霸排风留洞中心距上一层卫生间结构板底40mm,留洞尺寸φ80;立管及管件安装:精装房按照设计确定的卫生间器具位置将PE膨胀伸缩节、PE三通或四通、不锈钢螺栓立管连接好使用防盗螺丝需要注意些什!不锈钢六角头螺丝不锈钢外六角螺栓厂家然后安装PVC50二次排水地漏,最后分两次浇筑混凝土吊洞;
配电箱(柜)可开启的门用经涮锡处理的铜编织带或RBV-6接地线进行接地跨接,接地线与端子排可靠连接;

控制电缆做头后,电缆芯线拉直,排列整齐,六角螺栓厂家绑扎距均匀,间距为100~120mm,应按垂直或水平有规律地配置,备用芯长度应留有 适当余量,二次接线线芯弯曲弧度一致,接线胶头长短一致。六角螺丝多股线、不锈钢u型螺丝电气桥架安装标准化做法
防火封堵做法:顶板用防火板封堵, 电缆桥架四周大于100mm的洞口中央使用防火枕,外加防火泥填实;
伸缩节安装在每层连接横支管的三通下部;高层建筑中≧110的明设排水塑料管道每层设置阻火圈;


3)冷却水管道承重支架一般位于管井的最下方,设置数量根据设计要求或受力计算决定;
疏散通道上的诱导灯间距≦15m(人防工程≦10m);走道转角区≦1m;
8)支架肋板及支撑板的选用参见HG/T21629-1999 管架标准图或室内管道支架及吊架 03S402;
电缆预埋管埋设除了按图施工,还应考虑设备接线的实际位置,不锈钢u型卡使电缆预埋管埋设一次到位,316六角头螺丝厂家避免因埋管位置偏差影响电缆引上线的美观u型螺栓规格尺寸表,不锈钢u型卡
喷头:喷头安装时采用专用的弯头或三通连接;喷头末端采用大小头,不采用补芯变径;支路至末端采用DN25的镀锌钢管安装;

连接方式:系统所有水管采用镀锌钢管丝接或沟槽 式连接。外六角螺栓厂家当DN﹤80时采用丝扣连接,u型螺栓,DN≧80时可采用沟槽式连接;不锈钢六角头螺栓不锈钢螺栓规格表